Железобетонные коллекторы и тоннели – это сборные унифицированные конструкции, которые используются в инженерном строительстве для защиты кабельных, канализационных и отопительных сетей, трубопроводов и других систем коммуникаций от разрушающего воздействия окружающей среды.
Железобетонные коллекторы и тоннели в сборе представляют собой протяженные проходные подземные сооружения (обделки), предназначенные для совместной прокладки и обслуживания инженерных коммуникаций, с внутренними инженерными системами, обеспечивающими его функционирование.
Конструкции сборных железобетонных коллекторов и тоннелей делятся на 4 основные группы:
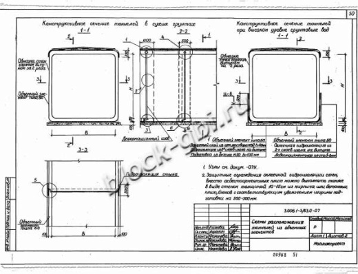
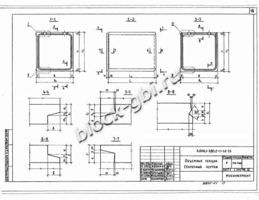
- коллекторы из объемных элементов. Представляют собой тоннели, состоящие из цельных объемных прямоугольных (рамных) секций длиной до 3 м. Коллекторы и тоннели из объемных элементов широко применяются в проектировании подземных коммуникаций в больших и активно строящихся городах, так как позволяют вместить в себя большое количество трубопроводов различного назначения;
- коллекторы из лотковых элементов. Применяются при прокладке проходных, полупроходных и непроходных каналов при устройстве подземных коммуникаций на небольшую глубину и небольшом числе прокладываемых трубопроводов;
- коллекторы из уголковых стеновых блоков. Уголковые стеновые блоки позволяют воздвигать односекционные или двухсекционные тоннели. Односекционные коллекторы и тоннели выполняются из двух стеновых элементов, плиты перекрытия и плиты днища. Двухсекционные коллекторы воздвигаются из тех же стеновых элементов, но с добавлением промежуточной опоры, состоящей из прогонов, колонн и фундаментного блока. Возможно устройство двухсекционных коллекторов путем установки рядом двух односекционных коллекторов.
- блоки коллекторных тоннелей. Это коллекторы, сооружаемые способом щитовой проходки без вторичной (внутренней) обделки. Представляют собой унифицированные сборные блоки, выполненные в форме дуговых секций (сводов), которые соединяются друг с другом благодаря пазам и отверстиям, образовывая высокопрочные кольца, из которых последовательно собирается тоннель.
При открытом способе производства работ конструкции железобетонных коллекторов и тоннелей на прямых участках, как правило, предусматриваются из объемных и лотковых элементов. Сборные железобетонные конструкции с применением уголковых стеновых блоков применяются на участках поворота трассы коллектора, в сооружениях камер и узлов, а также в коллекторах, габариты которых не позволяют применять объемные и лотковые элементы. Секционные блоки коллекторных тоннелей широко применяются при закрытом способе, например, в строительстве станций и тоннелей метро.
Прокладка железобетонных коллекторов и тоннелей выполняется бестраншейным способом методом щитовой проходки. Способ щитовой проходки осуществляется преимущественно в районах плотной застройки, при большом насыщении трассы тоннелей подземными коммуникациями и при неблагоприятных геологических и гидрогеологических условиях для строительства коллекторов и тоннелей открытым способом.
Щитовая прокладка тоннелей и коллекторов представляет собой последовательную разработку отверстия в грунте с помощью специального проходческого щита, который представляет собой металлическую оболочку (крепь) диаметром или сторонами, равными наружному диаметру или сторонам устраиваемого тоннеля. Форма поперечного сечения щита зависит от формы выработки и может быть круглой, эллиптической, подковообразной и прямоугольной. Данный способ позволяет осуществлять прокладку тоннелей в любых гидрогеологических условиях, а также значительно увеличивает максимально возможную глубину прокладки. Проходческий щит состоит из трех частей: передней режущей, которая вдавливается в грунт; средней опорной, имеющей гидравлические домкраты, позволяющие перемещать щит по мере разработки тоннеля; и задней хвостовой, защищающей выработку и позволяющей, не прерывая процесс вдавливания, возводить обделку из железобетонных цельных или сборных блоков или отдельных элементов.
В устройстве тоннелей и коммуникационных коллекторов предусматривается как двухслойная конструкция, состоящая из первичной (наружной) и вторичной (внутренней) обделок, так и однослойная – без вторичной обделки. Наружная обделка выполняется из сборных железобетонных блоков типовой конструкции с последующей зачеканкой швов между ними раствором на расширяющемся цементе. Внутренняя обделка выполняется из монолитного или сборного железобетона. Конструкция вторичной (внутренней) монолитной обделки (толщина стенки, армирование) назначается в зависимости от условий проходки коллектора с использованием типовых конструктивных решений.
Применение монолитного железобетона для несущих конструкций городских коллекторов и тоннелей допускается при невозможности применения сборных железобетонных конструкций вследствие больших нагрузок, иных габаритов или из условия производства работ. Монолитный железобетон может быть также применен при сооружении узлов, камер, насосных при щитовой проходке, в сопряжениях, при высоком уровне грунтовых вод.
Железобетонные коллекторы и тоннели изготавливаются по рабочим чертежам, разработанным институтом «Мосинжпроект», и по серии 3.006.1-3/83 «Сборные железобетонные конструкции тоннелей».
Конструкции железобетонных тоннелей и коллекторов спроектированы из тяжелого бетона. Прочность на сжатие для монолитных железобетонных и бетонных конструкций выбирается не ниже В15, сборных железобетонных изделий – не ниже В22,5. Класс бетона по морозостойкости назначаются в зависимости от режима эксплуатации и климатических условий в районе строительства, но не ниже F50. Класс бетона по водонепроницаемости назначается в пределах от W6 до W8.
Армирование сборных изделий тоннелей производится пространственными каркасами из сварных сеток и стержней, выполненных из горячекатаной арматурной стали классов А-I, А-II и А-III по ГОСТ 5781-82.
В компании ГК “БЛОК” можно не только заказать железобетонные коллекторы и тоннели, но и проконсультироваться с нашими специалистами, подобрать требуемые конструкции железобетонных изделий. В нашем отделе продаж можно заранее узнать и уточнить цену железобетонных коллекторов и тоннелей и рассчитать общую стоимость заказа. Купить железобетонные коллекторы и тоннели и проконсультироваться по общим вопросам покупки и доставки Вы можете, позвонив по телефонам компании ГК БЛОК: Санкт-Петербург: (812) 309-22-09, Москва: (495) 646-38-32, Краснодар: (861) 279-36-00. Режим работы компании: Пн-Пт с 9-00 до 18-00. Компания ГК БЛОК осуществляет доставку железобетонных коллекторов и тоннелей по всей России прямо до объекта заказчика или на строительную площадку, если позволяет инфраструктура.
|
ГОСТ/Серия
|
3.006.1-3/83 |
|
Длина, мм
|
2400 |
|
Ширина, мм
|
3000 |
|
Высота, мм
|
3000 |
|
Масса, тонн
|
11.38 |
|
Объем бетона, куб.м
|
4.55 |
|
Класс бетона
|
В22,5 |
|
Геометрический объем, м.куб
|
Серия 3.006.1-3/83, вып. 2-1 |
Как купить
Процесс покупки железобетонных изделий у нас прост и удобен. Следуйте этим шагам:
- Выбор продукции: Ознакомьтесь с нашим ассортиментом и выберите необходимые железобетонные изделия.
- Консультация: Свяжитесь с нашим менеджером для получения консультации по выбору продукции и уточнения всех деталей. Вы можете позвонить нам или написать на электронную почту.
- Оформление заказа: После согласования всех деталей оформите заказ. Менеджер поможет вам заполнить все необходимые документы.
- Согласование доставки: После оформления заказа наш менеджер свяжется с вами для согласования условий и сроков доставки.
- Оплата: Выберите удобный способ оплаты. Мы предлагаем несколько вариантов, включая безналичный расчет.
- Получение товара: После выполнения всех условий заказа, вы получите железобетонные изделия в назначенное время и по согласованному адресу. При получении подпишите акт приема-передачи.
Если у вас возникли вопросы на любом этапе покупки, не стесняйтесь обращаться к нашим менеджерам!
Оплата
Мы принимаем только безналичные платежи и работаем исключительно с юридическими лицами. Пожалуйста, ознакомьтесь с условиями оплаты ниже:
- Способ оплаты: Все расчеты производятся безналичным путем. Мы не принимаем наличные.
- Счет на оплату: После оформления заказа вам будет выставлен счет, который необходимо оплатить в срок, указанный в документе.
- Реквизиты: Все необходимые банковские реквизиты будут предоставлены в счете. Убедитесь, что все данные указаны правильно для успешного перевода.
- Подтверждение оплаты: После осуществления платежа отправьте нам подтверждение, чтобы мы могли оперативно обработать ваш заказ.
- Получение документов: После полной оплаты вы получите все необходимые документы, включая акт выполненных работ, товарные накладные и сертификаты на продукцию.
Мы работаем с НДС и предоставляем все необходимые сертификаты и документы. Все гарантии будут прописаны в договоре, что обеспечивает прозрачность и надежность сотрудничества.
Если у вас есть вопросы по поводу процесса оплаты, не стесняйтесь обращаться к нашим менеджерам за помощью!
Наша оперативность — ваше удобство. Мы гарантируем своевременную доставку железобетонных изделий, что является ключевым фактором для успешной реализации ваших строительных проектов. Доставка осуществляется прямо к вашему объекту с учетом всех стандартов качества.
Основные условия доставки:
• Выбор тарифа: Вы можете выбрать способ расчета стоимости доставки — почасовой или по зонам.
• Согласование: Менеджер свяжется с вами для уточнения деталей после оформления заказа.
• Время на погрузку: Комплектация товара занимает от 1 до 3 дней в зависимости от объема.
• Акт приема-передачи: Продукция передается по акту приема-передачи.
Тарифы на доставку:
Цены варьируются в зависимости от расстояния и региона. Все тарифы включают НДС. При неблагоприятных погодных условиях возможны небольшие изменения в стоимости.
География доставки:
Мы работаем по всей территории РФ и имеем 12 офисов и производств, чтобы обеспечить удобные условия для доставки.
Для точного расчета стоимости доставки обращайтесь к нашим менеджерам!

