Описание телескопического лотка Б-7
Телескопические лотки (Б-7) Серия 3.503.1-66 применяются для устройства водоотводных систем, дренажа и других инженерных коммуникаций. Изделия изготавливаются из высокопрочного бетона с армированием стальной арматурой, что обеспечивает их прочность, устойчивость к нагрузкам и долговечность.
Применение телескопического лотка Б-7
Лоток Б-7 используется для организации водоотвода на дорогах, тротуарах, промышленных площадках и других объектах. Он служит важным элементом системы дренажа, предотвращая скопление воды и защищая покрытия от разрушения. Для монтажа могут применяться дополнительные элементы: решетки, фиксаторы и другие комплектующие.
Типы телескопических лотков
Телескопические лотки подразделяются на несколько типов в зависимости от размеров и назначения:
- Б: лоток стандартный;
- БЛ: лоток лотковый (для водоотвода);
- БУ: лоток усиленный (для интенсивных нагрузок);
- БД: лоток доборный (для сложных конфигураций).
Размеры зависят от типа: длина 1000–3000 мм, ширина 300–1000 мм, высота 300–600 мм.
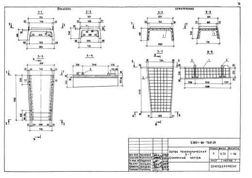
Основные параметры, размеры и характеристики
- Длина (L), мм: 1500
- Ширина (b), мм: 888
- Ширина внутренняя (b1), мм: 716
- Высота (h), мм: 400
- Высота внутренняя (h1), мм: 340
- Геометрический объем, м³: 0,533
- Объем бетона, м³: 0,125
- Масса, кг: 320
Дополнительные характеристики
- Класс бетона: В30 (марка М300)
- Марка по морозостойкости: F200–F300
- Марка по водонепроницаемости: W6–W8
- Закладные детали:
- Каркас арматурный К-3 (усиление конструкции);
- Петля строповочная ПС-1 (для монтажа).
- Количество закладных элементов:
- Каркас арматурный К-3: 1 шт;
- Петля строповочная ПС-1: 4 шт.
- Технология изготовления: вибропрессование или формование с использованием высокопрочного бетона.
Нормы загрузки
- Норма загрузки в автотранспорт 20 т, шт: 62
Документы
- Нормативный документ: Серия 3.503.1-66
Расшифровка маркировки Б-7
Маркировка "Б-7" содержит следующую информацию:
- Б – лоток телескопический;
- 7 – индекс серии, характеризующий габаритные размеры и конструктивные особенности.
Условия транспортировки и хранения
Лотки Б-7 перевозятся автомобильным или железнодорожным транспортом с использованием специальных захватных устройств (строп). Хранение осуществляется на ровных площадках с твердым покрытием. Лотки устанавливаются горизонтально в штабель высотой не более 2,5 м. Для предотвращения повреждений между изделиями устанавливаются деревянные прокладки.
Контроль качества лотка Б-7
Каждый лоток Б-7 проходит многоступенчатый контроль качества в соответствии с Серия 3.503.1-66. Проверяются:
- прочность бетона (не ниже класса В30);
- соответствие геометрических размеров проектным данным;
- качество армирования (наличие арматурного каркаса, толщина защитного слоя бетона);
- морозостойкость и водонепроницаемость бетона;
- точность расположения закладных элементов;
- отсутствие трещин, сколов и других дефектов.
Заключение
Лоток Б-7 – надежный и долговечный элемент для устройства водоотводных систем и дренажа. Благодаря строгому соблюдению требований Серия 3.503.1-66 и использованию качественных материалов, он обеспечивает прочность, устойчивость и долговечность конструкций. Для заказа качественных железобетонных лотков обращайтесь к производителям с сертификатами соответствия и опытом работы в сфере ЖБИ.
Смотрите также:
| Варианты написания товара |
|---|
| Лоток телескопический Б-7 |
| Б-7 лоток |
| Лоток телескопический Б-7 Серия 3.503.1-66 |
| Б-7 Серия 3.503.1-66 |
| Лоток телескопический Б-7 |
| Б-7 |
| Лоток телескопический Б-7 Серия 3.503.1-66 |
| Б-7 Серия 3.503.1-66 |
|
ГОСТ/Серия
|
Серия 3.503.1-66 |
|
Длина, мм
|
1500 |
|
Ширина, мм
|
888/716 |
|
Высота, мм
|
400/340 |
|
Масса, тонн
|
0.32 |
|
Объем бетона, куб.м
|
0.125 |
|
Геометрический объем, м.куб
|
0.533 |
|
Закладная 1
|
Каркас арматурный К-3 |
|
Закладная 2
|
Петля строповочная ПС-1 |
Как купить
Процесс покупки железобетонных изделий у нас прост и удобен. Следуйте этим шагам:
- Выбор продукции: Ознакомьтесь с нашим ассортиментом и выберите необходимые железобетонные изделия.
- Консультация: Свяжитесь с нашим менеджером для получения консультации по выбору продукции и уточнения всех деталей. Вы можете позвонить нам или написать на электронную почту.
- Оформление заказа: После согласования всех деталей оформите заказ. Менеджер поможет вам заполнить все необходимые документы.
- Согласование доставки: После оформления заказа наш менеджер свяжется с вами для согласования условий и сроков доставки.
- Оплата: Выберите удобный способ оплаты. Мы предлагаем несколько вариантов, включая безналичный расчет.
- Получение товара: После выполнения всех условий заказа, вы получите железобетонные изделия в назначенное время и по согласованному адресу. При получении подпишите акт приема-передачи.
Если у вас возникли вопросы на любом этапе покупки, не стесняйтесь обращаться к нашим менеджерам!
Оплата
Мы принимаем только безналичные платежи и работаем исключительно с юридическими лицами. Пожалуйста, ознакомьтесь с условиями оплаты ниже:
- Способ оплаты: Все расчеты производятся безналичным путем. Мы не принимаем наличные.
- Счет на оплату: После оформления заказа вам будет выставлен счет, который необходимо оплатить в срок, указанный в документе.
- Реквизиты: Все необходимые банковские реквизиты будут предоставлены в счете. Убедитесь, что все данные указаны правильно для успешного перевода.
- Подтверждение оплаты: После осуществления платежа отправьте нам подтверждение, чтобы мы могли оперативно обработать ваш заказ.
- Получение документов: После полной оплаты вы получите все необходимые документы, включая акт выполненных работ, товарные накладные и сертификаты на продукцию.
Мы работаем с НДС и предоставляем все необходимые сертификаты и документы. Все гарантии будут прописаны в договоре, что обеспечивает прозрачность и надежность сотрудничества.
Если у вас есть вопросы по поводу процесса оплаты, не стесняйтесь обращаться к нашим менеджерам за помощью!
Наша оперативность — ваше удобство. Мы гарантируем своевременную доставку железобетонных изделий, что является ключевым фактором для успешной реализации ваших строительных проектов. Доставка осуществляется прямо к вашему объекту с учетом всех стандартов качества.
Основные условия доставки:
• Выбор тарифа: Вы можете выбрать способ расчета стоимости доставки — почасовой или по зонам.
• Согласование: Менеджер свяжется с вами для уточнения деталей после оформления заказа.
• Время на погрузку: Комплектация товара занимает от 1 до 3 дней в зависимости от объема.
• Акт приема-передачи: Продукция передается по акту приема-передачи.
Тарифы на доставку:
Цены варьируются в зависимости от расстояния и региона. Все тарифы включают НДС. При неблагоприятных погодных условиях возможны небольшие изменения в стоимости.
География доставки:
Мы работаем по всей территории РФ и имеем 12 офисов и производств, чтобы обеспечить удобные условия для доставки.
Для точного расчета стоимости доставки обращайтесь к нашим менеджерам!

